- Agence immobilière Paris 15
- Vente
- Paris
- Paris
- PARIS XI .Quartier CHEMIN VERT / BASTIILLE . A vendre grand appartement familial scindé en deux unités.
Référence : 1761
Calculette
Partager
PARIS XI .Quartier CHEMIN VERT / BASTIILLE . A vendre grand appartement familial scindé en deux unités.
Partager l'offre
Description de l'offre
Quartier BASTILLE/ CHEMIN VERT.
Le Cabinet ROCHE vous présente à la vente dans immeuble ancien Pierre de Taille, sécurisé avec ascenseur.
Deux unités indépendantes.
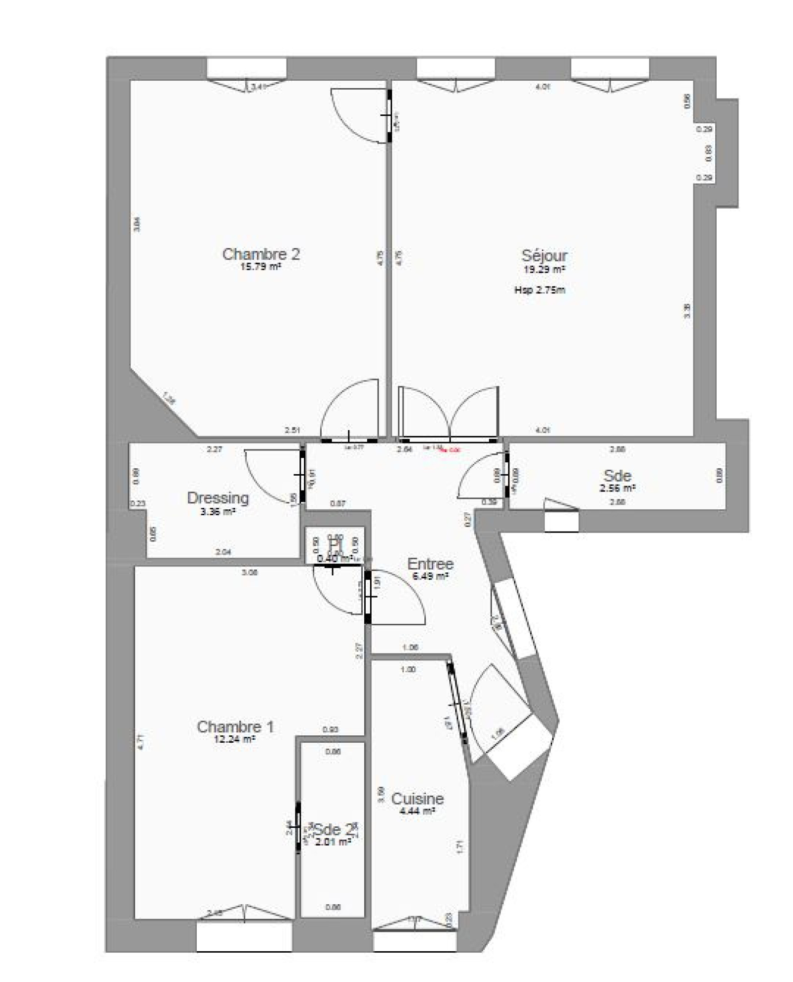
1er) Un 4 pièces traversant et ensoleillé: séjour avec cuisine intégrée, trois chambres, deux poiints d'eau
2ème) Un 3 pièces vendu loué: séjour, cuisine, deux chambres, deux points d'eau.
Emplacement privilégié, proche de toutes commodités
Contactez-nous pour plus d'informations ou visite!
Usage de résidence pricipale + investissement locatif.
Les informations sur les risques auxquels ce bien est exposé sont disponibles sur le site Géorisques
Descriptif du bien
- Code postal : 75011
- Surface habitable (m²) : 149 m²
- Surface loi Carrez (m²) : 148,95 m²
- Nombre de chambre(s) : 5
- Nombre de pièces : 6
- Etage : 1
- Ascenseur : OUI
- Nb de salle de bains : 1
- Nb de salle d'eau : 3
- Mode de chauffage : Electrique
- Type de chauffage : Convecteur
- Format de chauffage : Individuel
- Visiophone : OUI
- Cave : OUI
- Exposition : OUEST
- Année de construction : 199
- Copropriété : OUI
- Lot n° : 14
- nombre de lots : 72
- Quote Part annuelle des charges : 4 708 €
- plan de sauvegarde : NON
- statut du syndic : pas de procédure en cours
- Prix de vente : 1 270 000 €
- Les honoraires d'agence seront intégralement à la charge du vendeur
- Charges : 392 €
- Taxe foncière annuelle : 888 €
Montant estimé des dépenses annuelles d'énergie pour un usage standard est compris entre 3 800 € et 5 220 € . Prix moyens des énergies indexés sur les années 2021, 2022 et 2023 (abonnements compris).
La ville de Paris (75011)
Nous Contacter
Afficher le téléphone 01 45 32 66 10Les informations recueillies sur ce formulaire sont enregistrées dans un fichier informatisé par La Boite Immo agissant comme Sous-traitant du traitement pour la gestion de la clientèle/prospects de l'Agence / du Réseau qui reste Responsable du Traitement de vos Données personnelles.
La base légale du traitement repose sur l'intérêt légitime de l'Agence / du Réseau.
Elles sont conservées jusqu'à demande de suppression et sont destinées à l'Agence / au Réseau.
Conformément à la loi « informatique et libertés », vous disposez des droits d’accès, de rectification, d’effacement, d’opposition, de limitation et de portabilité de vos données. Vous pouvez retirer votre consentement à tout moment en contactant directement l’Agence / Le Réseau.
Consultez le site https://cnil.fr/fr pour plus d’informations sur vos droits.
Si vous estimez, après avoir contacté l'Agence / le Réseau, que vos droits « Informatique et Libertés » ne sont pas respectés, vous pouvez adresser une réclamation à la CNIL.
Nous vous informons de l’existence de la liste d'opposition au démarchage téléphonique « Bloctel », sur laquelle vous pouvez vous inscrire ici : https://www.bloctel.gouv.fr
Dans le cadre de la protection des Données personnelles, nous vous invitons à ne pas inscrire de Données sensibles dans le champ de saisie libre.
Ce site est protégé par reCAPTCHA, les Politiques de Confidentialité et les Conditions d'Utilisation de Google s'appliquent.


