- Agence immobilière Paris 15
- Vente
- Paris
- Paris
- PARIS 75015 . Quartier VOLONTAIRES. Spacieux 2 pièces à vendre.
Référence : 1751
Calculette
Partager
PARIS 75015 . Quartier VOLONTAIRES. Spacieux 2 pièces à vendre.
Partager l'offre
Description de l'offre
PARIS XVème. Quartier VOLONTAIRES.
Le Cabinet ROCHE vous présente à la vente, dans un immeuble moderne de qualité bien entretenu disposant d'un ascenseur en étage élevé.
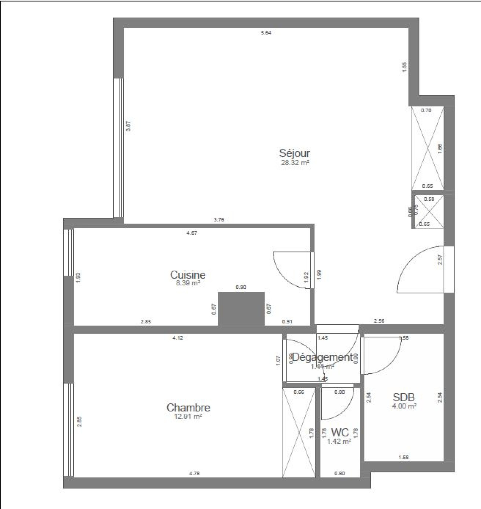
Ce spacieux deux pièces calme et ensoleillé, composé, d'un vaste séjour de 28m², une cuisine indépendante, une chambre, une salle de bains, un WC.
Une cave et un local vélo complètent ce bien. La copropriété s'assure les services d'une gardienne.
A proximité de toutes commodités. Possibilité d'exercer une profession libérale.
Les informations sur les risques auxquels ce bien est exposé sont disponibles sur le site Géorisques
Descriptif du bien
- Code postal : 75015
- Surface habitable (m²) : 57 m²
- Surface loi Carrez (m²) : 56,48 m²
- Nombre de chambre(s) : 1
- Nombre de pièces : 2
- Etage : 4
- Vue : Agréable
- Nb de salle de bains : 1
- Cuisine : SEPAREE
- Type de cuisine : SEMI-EQUIPEE
- Exposition : SUD-OUEST
- Année de construction : 1970
- Copropriété : OUI
- Lot n° : 187
- nombre de lots : 86
- Quote Part annuelle des charges : 2 640 €
- plan de sauvegarde : NON
- statut du syndic : pas de procédure en cours
- Prix de vente honoraires TTC inclus : 450 000 €
- Charges : 220 €
Montant estimé des dépenses annuelles d'énergie de ce logement pour un usage standard est compris entre 700 € et 990 € . 2021 étant l'année de référence des prix de l'énergie utilisés pour établir cette estimation.
La ville de Paris (75015)
Nous Contacter
Afficher le téléphone 01 45 32 66 10Les informations recueillies sur ce formulaire sont enregistrées dans un fichier informatisé par La Boite Immo agissant comme Sous-traitant du traitement pour la gestion de la clientèle/prospects de l'Agence / du Réseau qui reste Responsable du Traitement de vos Données personnelles.
La base légale du traitement repose sur l'intérêt légitime de l'Agence / du Réseau.
Elles sont conservées jusqu'à demande de suppression et sont destinées à l'Agence / au Réseau.
Conformément à la loi « informatique et libertés », vous disposez des droits d’accès, de rectification, d’effacement, d’opposition, de limitation et de portabilité de vos données. Vous pouvez retirer votre consentement à tout moment en contactant directement l’Agence / Le Réseau.
Consultez le site https://cnil.fr/fr pour plus d’informations sur vos droits.
Si vous estimez, après avoir contacté l'Agence / le Réseau, que vos droits « Informatique et Libertés » ne sont pas respectés, vous pouvez adresser une réclamation à la CNIL.
Nous vous informons de l’existence de la liste d'opposition au démarchage téléphonique « Bloctel », sur laquelle vous pouvez vous inscrire ici : https://www.bloctel.gouv.fr
Dans le cadre de la protection des Données personnelles, nous vous invitons à ne pas inscrire de Données sensibles dans le champ de saisie libre.
Ce site est protégé par reCAPTCHA, les Politiques de Confidentialité et les Conditions d'Utilisation de Google s'appliquent.


